Den 26 juni beslutade Samhällsbyggnadsnämnden att bevilja bygglov för en 1 750 kvadratmeter stor moské, med plats för 700 besökare. Oppositionen bestående av M, KD och SD ville avslå bygglovet men majoriteten som består av S, V och C drev igenom bygglovet. Men något protokoll från mötet har ännu inte publicerats på Kalmar kommuns webbsida.
När jag ser hur planlösningen i de inlämnade handlingarna till bygglovet ser ut så gör jag min egen tolkning utifrån erfarenhet och det samtal jag hade med ordförande för Muslimska trossamfundet i Kalmar, Shadi Salame i april.
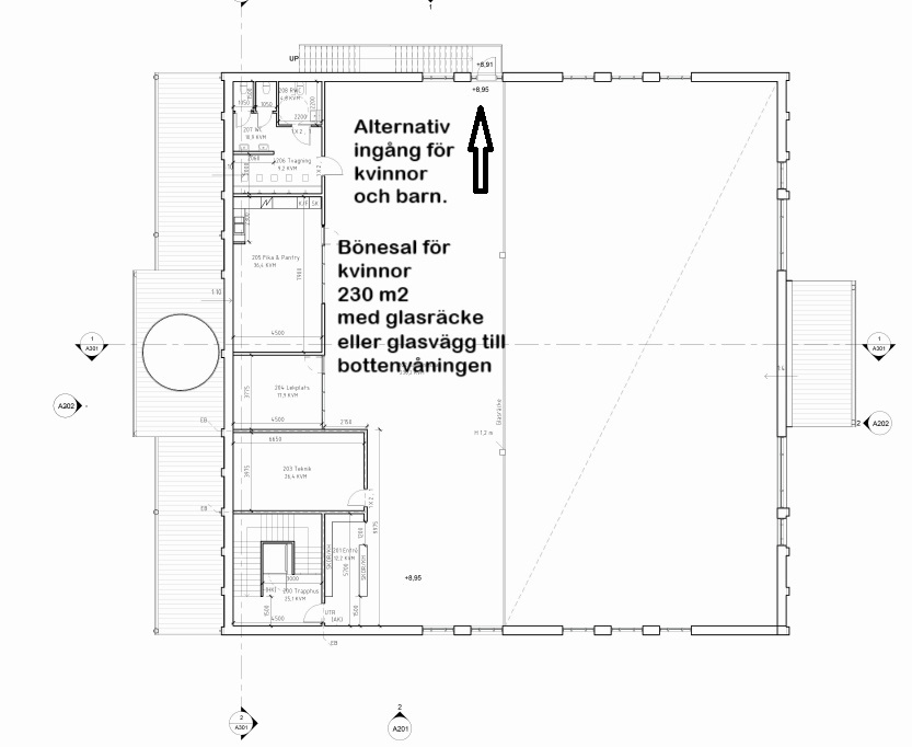
Planlösningen är gjord på ett sådant sätt att män och kvinnor kan separeras på ett enkelt sätt vid till exempel fredagsbönen.
På följande länk finns hela planritningen.
Jag gör följande tolkning av planritningen.
På bottenvåningen kommer det finnas en huvudingång som kommer användas av männen i första hand. Männen kommer sedan mer eller mindre direkt in till den ca 550 kvadratmeter stora bönesalen enligt planlösningen för bottenplanet. Men det kommer även finnas en sidoingång och min tolkning är att den skall användas av kvinnorna.

Om kvinnorna vill närvara vid till exempel fredagsbönen får de använda sidoingången och sedan ta trapporna upp till ett övre plan som är över halva bottenplanet. Mot den nedre bönesalen kommer det finnas ett glasräcke eller glasvägg så att kvinnorna kan följa imamen och bönen.

Jag finner det väldigt märkligt att ingen av tjänstemännen på Samhällsbyggnadsförvaltningen ser och tolkar planlösningen på samma sätt som jag gör. Har tjänstemännen ställt frågor om detta till Muslimska trossamfundet eller är det helt okunniga? Ännu mer förvånande är att ingen politiker heller ser denna könsseparering, som är en ren könsdiskriminering och som bryter mot de lagar om diskriminering som vi instiftat i Sverige.
Uppenbarligen blundar både politiker och tjänstemän för detta av ren feghet eller okunskap om islam!
Dessutom har ju Kalmar kommunfullmäktige antagit flera policydokument om jämställdhet och könsdiskriminering men dessa dokument verkar inte gälla för islam och muslimer. Utan denna religion särbehandlas av vänstermajoriteten och framför allt Socialdemokraterna.
En ny moské invigdes nyligen i Helsingborg och där används också könsseparering enligt denna video.
Modet att skriva in en tilläggstext i svensk lagstiftning finns ej.
Det är ju inom islam en självklarhet
att kvinnan kommer på andra plats.
Politikerna vill väl ej gärna utåt medge
att man har att acceptera islams
särart så främmande för svenskt
tänkande.
GillaGilla
Nu var det säkert över 20 år sen jag besökte ett badhus men jag vill minnas att omklädningsrummen var könsseparerade.
GillaGilla
Anser du att det är diskriminering?
GillaGilla
Nej, ville bara påminna om att vi har våra vanor vi också.
GillaGilla
Så du tycker inte det är någon skillnad mellan naket och fullt påklädd. Kan du ge något exempel på en kultur eller religion där män och kvinnor klär om tillsammans nakna?
GillaGillad av 2 personer
Många så kallade primitiva folk går nakna,tex Nya Guinea och i Amazonas.
Men när missionärer kom så blev det annorlunda.
Kulturer förändras ständigt, jag såg aldrig min mormor i kort klänning eller långbyxor inte heller min farmor. Men farfar, morfar och min far hade hatt och ingen av dem svor stup i kvarten. Eller kallade andra människor för idioter och liknande.
Men visst är det tragiskt att många muslimer måste ha sådana kläder som de har. Även andra för oss underliga vanor.
Varför präster och biskopar har så konstiga kläder och hattar förstår jag ej.
GillaGilla
Tycker du att det även är fel med uniform för poliser och militär eller ordningsvakter?
GillaGilla
Nej,de signalerar vem de är. Ärkebiskopens mössa signalerar nått annat.
Många människor är vana vid kyrkan,ser den som harmlös,ser kanske skolavslutningen och sommarlovet. Just nu påverkar inte prästerna så mycket men i många länder stärks den på ett obehagligt sätt, minns den amerikanske pastorn som brände svenska flaggan. Islam och kristendom har samma grund i det mänskliga psyket, Islam ökar trycket på oss, det jag är rädd för ör att Kristina samfund väljer samma väg.
GillaGilla
Du letar efter grandet i svenska seder men ser inte bjälken i muslimska seder.
GillaGilla
Ivar, om du menar att det är jag som är”du”.
Angående Islam och dess utryck,är jag väl medveten,så många påpekar dess brister att en till i kören gör ingen nytta.
Och svenska seder är jag inte emot, men risker finns med att kristendomen utnyttjas för andra syften än religion. I utlandet finns exempel på det, alltså, jag vill uppmärksamma den risken. Den kyrka vi har nu utgör inget större hot mot den personliga friheten.
GillaGilla
ja det har du rätt i men Johan Persson verkar ha syltryggarna i sitt järngrepp. Otäckt men så ser det ut på många håll i Sverige där sossarna styr .
GillaGillad av 2 personer
Haha Det står ju UTR alltså utrymningsväg… En utrymningsväg är stängd från utsidan och öppen från insidan! Nä thoralf den här gången har du skitit i det blå skåpet! Av att läsa från dina referenser så är det ju bara en ingång, allt annat är utrymningsvägar. Din hypotes faller platt. Men det är du nog för feg för att erkänna eller publicera
GillaGilla
Jag kan givetvis publicera din kommentar.
”Utrymningsvägar får vara låsta utifrån, men det är avgörande att låssystemen är utformade för att säkerställa att utrymning kan ske snabbt och enkelt vid behov, och att det alltid finns alternativa utrymningsvägar.”
En utrymningsväg måste alltså inte vara låst utifrån. Men den skall vara försedd med särskild öppningsutrustning från insidan. Utrymningsvägar skall normalt inte heller användas som huvudingång men det är det inte heller i detta fall.
Alltså är det fullt möjligt att vid t.ex. fredagsbönen använda den som ingång.
Men även om det skulle vara enbart en utrymningsväg så förändrar det inget angående att kvinnorna skall vara i den övre våningen skilt ifrån männen på bottenplanet, enligt min tolkning av planlösningen.
Sedan hade jag missat att det finns ytterligare en ingång till det övre planet som inte är utmärkt som utrymningsväg. Missade du den? Jag uppdaterar mitt blogginlägg med det. Tack för att jag synade planlösning en gång till.
Du vet väl att man inom islam alltid skiljer på män och kvinnor vid sina religiösa sammankomster.
Du borde läst på lite mer innan du skrev din kommentar och gjorde bort dig.
PS
Undrar om det är Jan Stenqvist, journalist på Barometern som döljer sig bakom J.Stenqvist?
GillaGillad av 2 personer
Jag förstår att du planerar att flytta när moskén står färdig. Jag vill passa på att tacka dig för dina insatser här i Kalmar, Thoralf.
GillaGilla
Arvodes-makten för demokraturens tunnelseende vänsterpolitiker är extremt hög prioriterande än att Sveriges Rikes Lag ska gälla, lika för alla.
Vänsterns välanpassade valspråk: ”Vi-Vänsterpolitiker där uppe och Dem-De andra där nere”.
GillaGillad av 1 person
”Det är märkligt att politikerna inte” skriver du . Det är inte märkligt att det är så . Det ingår i Socialdemokraternas maktambitioner att blidka de grupper som hjälper dem till makten . Islamisering är ett annat ord för det .
Malmö är deras idealsamhälle . Hur de ska hantera Sverige när de är klara har jag aldrig förstått .
GillaGillad av 1 person
Men det finns ju ytterligare 7 partier i kommunfullmäktige i Kalmar. T.ex. SD.
GillaGilla
SD är i grund och botten ett bidragsparti men har fått kompromissa bort den politiken i Tidösammarbetet, det är ett intryck jag fått efter förra valrörelsen. De partier som betonar ett personligt ansvar,enligt min åsikt, är Moderaterna och Liberalerna och i viss mån Centrrn.
GillaGilla
Kan du motivera att SD skulle vara ett bidragsparti?
GillaGilla
Nej i grund och botten kan jag inte det.Utan jag baserar det endast på minnet från valrörelsen, då jag fick intrycket att de gjorde motstånd till moderaternas förslag. Ett problem för SD är ju att höjer man olika bidrag till svenskar i knipa så gagnar det också invandrare, tex skaffar många barn,söker inte jobb,ska ha bra bostäder osv.
GillaGilla